如果您喜欢打高尔夫球

楼盘亮点
【楼盘名称】Adena View Phase 3
【开发商】Treasure Hill
【入住日期】2020年
【地段】Leslie & Wellington Aurora奥罗拉
【Lot】36尺,40尺,45尺和60尺宽的不同的独立屋!
【室内面积】3350-4700平方尺
【起价】$100余万起
钻石级地理位置
Adena Views 位于Wellington和Leslie的西南角,是Aurora最美丽和最受追捧的地点,背靠享有盛名的私人高尔夫俱乐部-MAGNA高尔夫球场,对面越过湖泊和碧绿的草坪则是市值超过千万的超豪华豪宅-Mansions。
-
3分钟可上404高速
-
5分钟车程到达Aurora Go Train
-
5分钟车程可达多处购物中心,商业金融区,社区中心,影院,多处公园,图书馆
-
Aurora地处大多伦多北部,拥有各种成熟的社区配套设施。
-
该盘背靠Magna高尔夫球场,环境优美,生活便利,交通快捷!
超级投资回报
★成熟社区,前两期推出后,火爆售罄;
★优异的学区
非常著名的古老的百年男私校, 成立于1899年, 最初的地址位于多伦多玫瑰谷社区, 1926年迁入现在的新址。学校从5-12年级,共有600~700名学生, 每年 100% 升学率。
成立于1989年, 28年来一直致力于为18个月至8年级的儿童提供卓越的教育。
Aurora 有两所公立高中,其一Aurora H.S去年在安省740名的高中学校中排名42,是约克地区最好的高中之一,学校设有双语(英/法)课程。
开发商

由著名开发商Treasure Hill打造,Treasure Hill在安省颇有盛誉,BILD awards获奖者开发多处楼盘,拥有丰富的经验!该公司一向以以设计时尚,注重客户需求和楼盘品质而闻名!
开发商聆听客户的需求,倾注于精心合理的设计,使居住空间最大化。独特的功能设计,建造节能房,客户服务周到,竭力超越消费者的期望,得到广泛的认可。
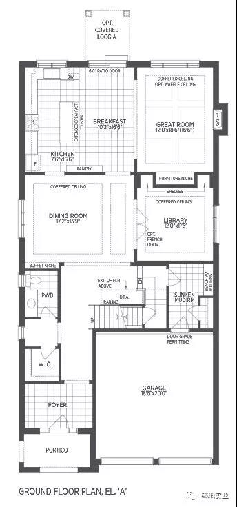
户型,内部设计
一楼10尺层高,其余楼梯9尺层高,机会难得!
整屋现代化升级装潢!






更多户型图请联系647-351-2727
或者扫一扫下面二维码加微信客服

盛地实业是一家在加拿大安大略省注册的综合性房地产公司。自成立以来,公司秉承“最高品质,口碑相传”的理念,用周到贴心的服务获得了广大客户的支持与信赖!盛地实业的业务范围广泛,包括民用和商业地产买卖,公寓豪宅买卖,楼花楼盘代理,土地开发以及租赁服务等等,务求满足客户所需,提供终身售后服务。
电话:6473512727
邮箱:info@realland.ca
微信:realland2727
网站:www.realland.ca