575 & 585 Bloor Street East,Tridel力推Bloor街上豪华精品楼盘

现有两个单元楼花转手,欢迎经纪合作!
- Via Bloor 1: 567尺,1+1Den,28层,朝东!56万余
- Via Bloor 2: 916尺,2室中最大户型,2卧2浴,31层,朝西北,含车位!91余

---楼盘亮点---
【开发商】Tridel and Rowntree Enterprises
【建筑设计】architectsAlliance
【单元总数】西楼(第一期):374户;东楼(第二期):395户
【层数】西楼:37楼;东楼:45楼
【入住日期】2021年
【地段】Bloor St & Parliament St,紧邻Rosedale社区
【具体地址】575 & 585 Bloor Street East
【管理费】约$0.6每平方尺每月
钻石级地理位置
Via Bloor两座双子大楼矗立在两大地铁站之间(Sherbourne & Castle Frank)

“出行指数高达100分”
-
步行仅3分钟到达Sherbourne地铁站
-
步行仅3分钟到达Castle Frank地铁站
-
步行8分钟到达大型超市Food Bascis
-
步行15分钟到达有多伦多第五大道美誉的Yonge & Bloor商圈
-
公交仅需9分钟、地铁4站可直达多伦多大学和怀尔逊大学
-
步行指数95/100,易乘公交TTC,5分钟可达DVP高速路,省去堵车烦恼
著名开发商

多伦多著名开发商,是在加拿大长期排名第一的共管式物业发展商,公认的绝对王者,新房无数,蔚为壮观。 已有七十多年历史的地产集团。Tridel从成立到现在,已完成150多个高层建筑。在多伦多最繁华昂贵的高级公寓区Yorkville,Tridel拥有10 Bellair;DT Toronto还包括130 Carlton St,300 Front St W,60/80/152 St. Patrick, Discovery Place。Tridel的建筑还包括住在北约克的朋友所熟识的78/80/100 Harrison Garden, 15/25 Greenview,5/8/10/15 Northtown Way, 18 Sommerset;万锦市的朋友所熟悉的Circa1/2。Tridel开发的公寓在设计,质量,售后,物管等方面的表现都十分卓越!
户型,内部设计
配有24小时保安系统;
游泳池、设施齐全的豪华健身中心、聚会厅、会议厅等室内公共设施;
空中花园、室外BBQ等户外休闲场地。
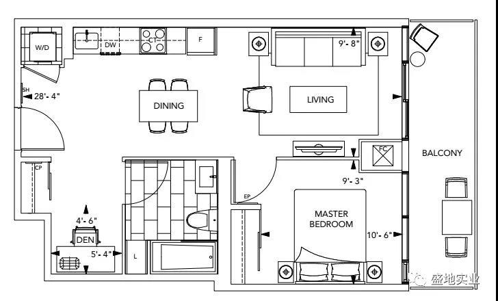
【Via Bloor 1: 567尺】

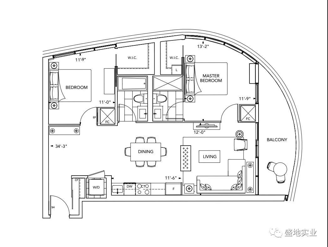
【Via Bloor 2: 916尺】



超级投资回报
★钻石位置:北临有多伦多的比弗利山美誉的尊贵豪宅区玫瑰谷(Rosedale);南面可观赏举世闻名的安大略湖和CNTower美景;向西举步可达各大金融机构,以及Rogers,Manulife,国家日报社总部等各大公司。Bloor& Yonge商圈近在咫尺。
★附近楼花,resale已高达$1200每平方尺,我们加价远远低于均价!
★附近租金参考:1+1Den高达2600每月,2室已高达3600每月

盛地实业是一家在加拿大安大略省注册的综合性房地产公司。自成立以来,公司秉承“最高品质,口碑相传”的理念,用周到贴心的服务获得了广大客户的支持与信赖!盛地实业的业务范围广泛,包括民用和商业地产买卖,公寓豪宅买卖,楼花楼盘代理,土地开发以及租赁服务等等,务求满足客户所需,提供终身售后服务。
电话:6473512727
邮箱:info@realland.ca
微信:realland2727
网站:www.realland.ca